Skip to content
    • Contact
    • 08:00 - 17:00
    • 2321051049
  • Newsletter

    Sign up for Newsletter

    Signup for our newsletter to get notified about sales and new products. Add any text here or remove it.

      • Contact
      • 08:00 - 17:00
      • 2321051049
    EuroDoorWoodEuroDoorWood
    • ΑΡΧΙΚΗ
    • ΕΤΑΙΡΕΙΑ
    • ΕΚΘΕΣΕΙΣ
      • MEDWOOD PLUS 2026
      • ΟΙΚΟΔΟΜΗ 2025
      • MEDWOOD 2024
      • ΟΙΚΟΔΟΜΗ 2024
      • MEDWOOD2022
      • XENIA 2021
      • MEDWOOD 2018
      • BATIMAT 2017
      • MEDWOOD 2016
      • EXPOHOTEL 2015
      • EURODOORWOOD ΧΟΡΗΓΟΣ ΤΟΥ ΠΑΝΣΕΡΡΑΪΚΟΥ
      • MEDWOOD 2014
      • MEDWOOD 2012
      • INFACOMA 2010
      • FURNITEC 2004
    • ΠΡΟΪΟΝΤΑ
      • ΕΙΔΗ ΠΟΡΤΩΝ
        • Laminate
        • Line
        • Speciality
        • Classic
        • Security
        • Security Aluminium
        • Warehouse
        • Fireproof
        • Accessories
      • ΤΡΟΠΟΣ ΚΑΤΑΣΚΕΥΗΣ ΠΟΡΤΩΝ
        • Συνεπίπεδη
        • Κρυφή Έξω
        • Κρυφή Μέσα
        • Κάσα Σκοτία
        • Nikel
        • Διαιρούμενη Κάσα Αλουμινίου
        • Security Glass Door
        • Security Pivot
        • Γωνιακή Κάσα και Περβάζι
        • Specifications- Certifications
    • ΚΑΤΑΛΟΓΟΙ
    • VIDEO
    • ΕΠΙΚΟΙΝΩΝΙΑ
    • LOGIN B2B
    • LOGIN B2B

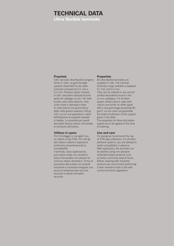
    SPECIFICATIONS-CERTIFICATIONS

    Home/SPECIFICATIONS-ΤΡΟΠΟΙ ΚΑΤΑΣΚΕΥΗΣ ΠΟΡΤΩΝ
    SPECIFICATIONS-CERTIFICATIONS

    SPECIFICATIONS

    Project Description

     

    ΠΡΟΔΙΑΓΡΑΦΕΣ

    Chipboard

    Chipboard

    EURODOORwood-Classic

    EURODOORwood-Classic

    EURODOORwood-Laminate

    EURODOORwood-Laminate

    EURODOORwood-Speciality

    EURODOORwood-Speciality

    Honeycomb

    Honeycomb

    LAMINATE FRAME-HIDDEN-INSIDE

    LAMINATE FRAME-HIDDEN-OUTSIDE-

    LAMINATE FRAME-HIDDEN-INSIDE

    LAMINATE FRAME-HIDDEN-INSIDE

    LAMINATE FRAME-ANGULAR-

    LAMINATE FRAME-ANGULAR-

    LAMINATE Frame-Straight-Plus

    LAMINATE Frame-Straight-Plus

    LAMINATE FRAME-HIDDEN-INSIDE

    LAMINATE FRAME-HIDDEN-INSIDE

    FRAMES

    Frame-Angular-TOP

    Frame-Angular-TOP

    Frame-Hidden-TOP

    Frame-Hidden-TOP

    Frame-Straight-Plus-TOP

    Frame-Straight-Plus-TOP

    Frame-Straight-TOP

    Frame-Straight-TOP

    HINGES

    Hinges_Hidden3

    Hinges_Hidden ΚΡΥΦΗ ΜΕΣΑ

    MENTESES

    MENTESES

    LOCKS

    Lock_Magnetic

    Lock_Magnetic

    Lock-External-Door

    Lock-External-Door

    Lock-Internal-Doors

    Lock-Internal-Doors

    Lock-Siromeni

    Lock-Siromeni

    Lock-Wc

    Lock-Wc

    EXTENSIONS

    EXTENSION-FRAME-NEW

    sectional-door

    sectional-door

    SPECIFICATIONS-CERTIFICATIONS

    SPECIFICATIONS-CERTIFICATIONS

    Διάτρητη μοριοσανίδα

    Διάτρητη μοριοσανίδα

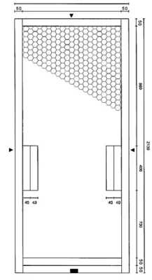
    Door-Section-Types

    Door-Section-Types

    ΤΟΜΗ ΠΟΡΤΑΣ

    ΤΟΜΗ ΠΟΡΤΑΣ

    Γράφημα Πόρτας

    Γράφημα Πόρτας

    Κάτοψη Κάσας Ίσιας

    Κάτοψη Κάσας Ίσιας

    Άνοιγμα Πόρτας

    Άνοιγμα Πόρτας

    Άνοιγμα Πόρτας με Σταθερό-Ανοιγώμενο Τμήμα

    Άνοιγμα Πόρτας με Σταθερό-Ανοιγώμενο Τμήμα

    CERTIFICATION

    ΑΛΛΑ ΠΡΟΪΟΝΤΑ

    speciality
    SPECIALITY

    SPECIALITY, ΕΙΔΗ ΠΟΡΤΩΝ

    security-scaled
    SECURITY

    SECURITY, ΕΙΔΗ ΠΟΡΤΩΝ

    nikel-scaled
    NIKEL

    NIKEL, ΕΙΔΗ ΠΟΡΤΩΝ

    line-scaled
    LINE

    LINE, ΕΙΔΗ ΠΟΡΤΩΝ

    laminate-scaled
    LAMINATE

    LAMINATE, ΕΙΔΗ ΠΟΡΤΩΝ

    SECURITY ALUMINIUM
    SECURITY ALUMINIUM

    SECURITY ALUMINUM, ΕΙΔΗ ΠΟΡΤΩΝ

    CLASSIC 2-scaled
    CLASSIC

    CLASSIC, ΕΙΔΗ ΠΟΡΤΩΝ

    WAREHOUSE apothikis
    WAREHOUSE

    WAREHOUSE, ΕΙΔΗ ΠΟΡΤΩΝ

    FIREPROOF
    FIREPROOF

    FIREPROOF, ΕΙΔΗ ΠΟΡΤΩΝ

    ACCESSORIES POMOLA
    ACCESSORIES

    ACCESSORIES, ΕΙΔΗ ΠΟΡΤΩΝ

    ΣΥΝΕΠΙΠΕΔΗ
    SECURITY PIVOT
    eurodoor_logo_transparent

    ΕΡΓΟΣΤΑΣΙΟ : Rupite-Petrich BULGARIA Τ.Κ. 2883
    ΕΚΘΕΣΗ - ΑΠΟΘΗΚΗ : ΒΙ.ΠΕ. ΣΕΡΡΩΝ Τ.Κ. 62100
    ΕΚΘΕΣΗ : ΑΘΗΝΑ Γαλατσίου 61, Γαλάτσι
    ΓΡΑΦΕΙΑ ΚΥΠΡΟΥ : Αιγαίου 3, ΛΕΜΕΣΟΣ, cyprous@eurodoorwood.com

     

    ☎ Καλέστε μας τώρα
    ✉️ Στείλτε μας Email

    Contact

    • Εταιρεία
    • Κατάλογοι
    • Επικοινωνία
    tuv_iso9001
    ce-logo-png-transparent-best
    IFCC-best-png

    © EuroDoorWood 2026

    Οροι ΧΡΗΣΗΣ ΠολιτικΗ ΑπορρΗτου

    ©
    EuroDoorWood 2026

    Terms Privacy Cookies
    ⭐ Εξυπηρετηθήκατε από την EURODOOR;
    Αφήστε μια σύντομη αξιολόγηση στο Google και βοηθήστε μας να γίνουμε ακόμη καλύτεροι.
    Γράψτε review
    • ΑΡΧΙΚΗ
    • ΕΤΑΙΡΕΙΑ
    • ΕΚΘΕΣΕΙΣ
      • MEDWOOD PLUS 2026
      • ΟΙΚΟΔΟΜΗ 2025
      • MEDWOOD 2024
      • ΟΙΚΟΔΟΜΗ 2024
      • MEDWOOD2022
      • XENIA 2021
      • MEDWOOD 2018
      • BATIMAT 2017
      • MEDWOOD 2016
      • EXPOHOTEL 2015
      • EURODOORWOOD ΧΟΡΗΓΟΣ ΤΟΥ ΠΑΝΣΕΡΡΑΪΚΟΥ
      • MEDWOOD 2014
      • MEDWOOD 2012
      • INFACOMA 2010
      • FURNITEC 2004
    • ΠΡΟΪΟΝΤΑ
      • ΕΙΔΗ ΠΟΡΤΩΝ
        • Laminate
        • Line
        • Speciality
        • Classic
        • Security
        • Security Aluminium
        • Warehouse
        • Fireproof
        • Accessories
      • ΤΡΟΠΟΣ ΚΑΤΑΣΚΕΥΗΣ ΠΟΡΤΩΝ
        • Συνεπίπεδη
        • Κρυφή Έξω
        • Κρυφή Μέσα
        • Κάσα Σκοτία
        • Nikel
        • Διαιρούμενη Κάσα Αλουμινίου
        • Security Glass Door
        • Security Pivot
        • Γωνιακή Κάσα και Περβάζι
        • Specifications- Certifications
    • ΚΑΤΑΛΟΓΟΙ
    • VIDEO
    • ΕΠΙΚΟΙΝΩΝΙΑ
    • Login
    • Newsletter

    Login

    Lost your password?